With its employees housed, Astoria offers rental homes to the working community
Astoria Park Conservancy is proud to announce the completion of its new employee housing and facilities building, marking a major milestone in Phase Two of Astoria Park’s development. As of April 2, 2026, the organization has received a Certificate of Occupancy for two newly constructed housing units, now available to the local workforce through a partnership with the Jackson/Teton County Housing Authority (JTCHA).
Originally envisioned nearly a decade ago, the project has moved from concept to reality over the past year, with construction beginning last summer. The completed building reflects Astoria’s broader vision of being more than a hot spring – a place that supports not only wellness and conservation, but also the people who sustain the community.
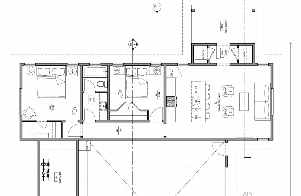
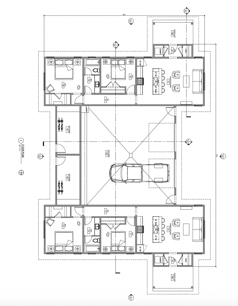
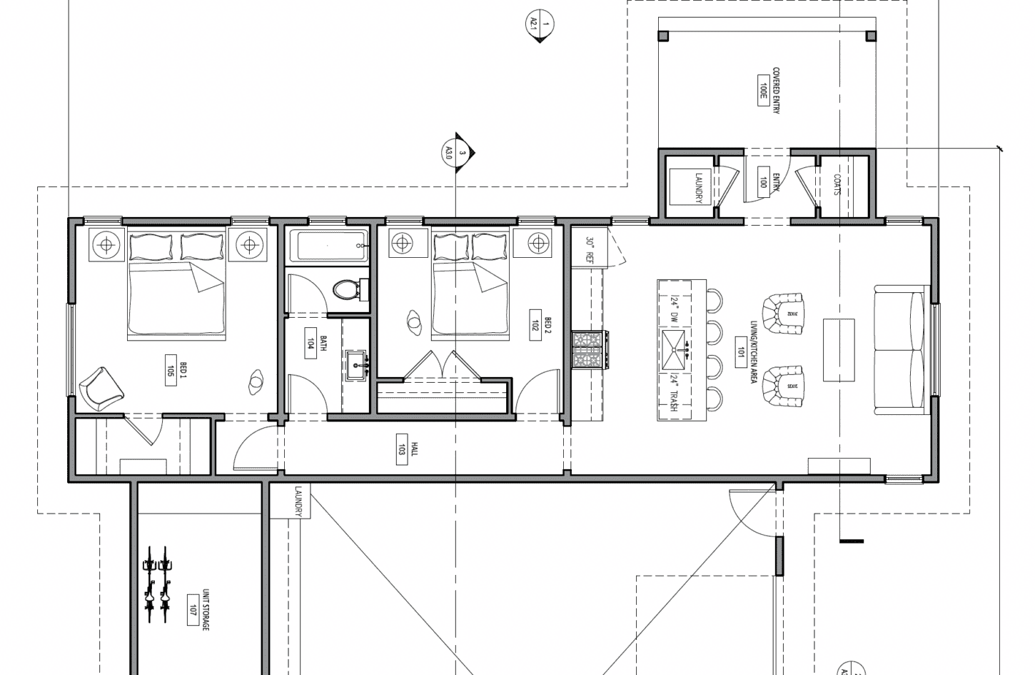
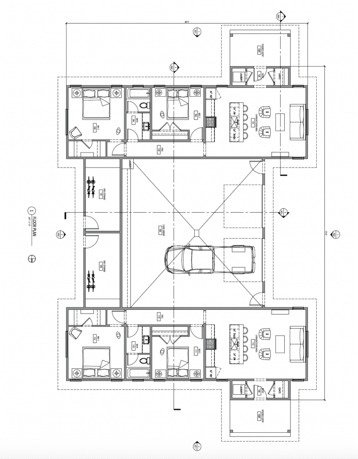
The two units, each approximately 1,100 square feet, include two bedrooms, one bathroom, an open kitchen and living area, in-unit washer and dryer, abundant natural light, and dedicated storage for outdoor gear. Each unit also includes two parking spaces.
As part of the JTCHA Workforce Housing program, these homes are designated as protected rental units, ensuring long-term affordability and occupancy by members of the local workforce. Astoria first offered the units to its staff, all of whom currently have stable housing. The organization is now making the units available to the broader community.
“The lack of affordable and workforce housing is one of the most pressing issues in Teton County,” said Executive Director Quinn McColly. “Astoria is in the enviable position that all current staff have housing, so it’s an honor to be able to offer these homes to the working community. I’m humbled by the spirit of our philanthropic friends who helped bring this housing and facilities building in our Park to fruition.”
This project was made possible through the generosity of donors to the Campaign for Community Connection, as well as grant funding. By providing housing for up to four residents, Astoria is contributing in a meaningful way to addressing the region’s housing challenges.
Nestled within Astoria’s 100-acre property along the Snake River, the housing allows residents to live in close connection with nature – a setting that reflects the organization’s commitment to fostering small, meaningful moments of joy and connection.
With this milestone, Astoria continues to build toward its long-term vision – expanding from a beloved hot spring into a full community park that supports wellness, education, conservation, and connection for all.

Rental Details:
- • Two-bedroom units (~1,100 sq ft)
- • One bathroom, open kitchen/living area
- • Washer/dryer, natural light
- • Two parking spaces per unit
- • Separate 130 sq ft lockable storage for gear
- • No smoking, no pets, unfurnished
- • Rent: $2,000/month per bedroom or $4,000/month per unit
- • Each unit may be rented under a single lease, or separate leases per bedroom
- • $2,000 security deposit per bedroom
- • One-year lease preferred (six-month considered)
- • Must meet JTCHA workforce housing requirements*
See more details at this PDF Document here.
How to rent:
Local residents who qualify and are interested in renting are encouraged to contact Director Quinn McColly at quinn@astoriapark.org with the subject line: Housing Interest. No phone calls, please.
*JTCHA workforce housing requirements:
These requirements and rules include but are not limited to the following: